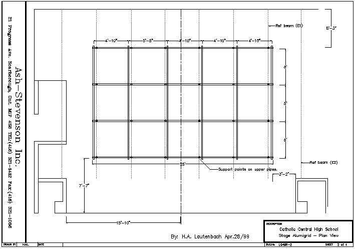
High School Stage Grids

The following drawings are available in ACAD LT format (ACAD12)
Please email me with the name of the job and I will email the drawings for that project.

Copyrights © 1995-2002 Ash-Stevenson Inc. All rights reserved.

All documents and images published at this site are the property of Ash-Stevenson Inc.and/or Automatic Devices Company or any company that Ash-Stevenson Inc. represents. No part of these documents may be reproduced or transmitted in any form (other than from this original World Wide Web server for the sole purpose of inclusion in specifications), specifying Ash-Stevenson Inc. as the distributor and installer for the companies represented. For no other reason shall any of this information disseminated without the express written permission of Ash-Stevenson Inc.

 

To be completed for the Summer of 2002

 

 

 
Partition doors make the stage front look different when one wants to set up for dramatic performances.

The valance is in the proscenium arch and hides the main draw tarcks and top of the drape.

Holy Cross - Stage side legs on Roto arms and retract to the side walls for storage.

This space was again used as a drama teaching area. also some of the space along the back was used for storage.

St. Teresa of Lisiux catholic High school - Double sided operation with a triple use.
Cafeteria side Stage and Lecture Threatre & Drama teaching side This utilizes and upper lighting grid for mounting all hardware at an elevation of 16 feet.  Would have like to see the grid at about 14 Ft. 6 inches for it would have been more ideal for 500 watt fixtures. To be compleated summer of 2002

St. Teresa of Lisiux catholic High school - Double sided operation with a triple use.
The Legs are again on Roto Arms and can be setup for both sides.  All the stage drapes are Black Commando cloth with exception of the main and rear draws which were Black velour 21 oz. All drapes are made with 50 % fullness as industry standard for School stages.
St. Teresa of Lisiux catholic High school - Double sided operation with a triple use.

Ardagh Secondary School -Drama Room Grid

Denis Morris Secondary School Stage grid layout

Denis Morris Secondary School Stage grid Cross Section of Draperies

All Saints Catholic High School - Kanata -Motorized Lift Legs & Rear Lift Curtain

All Saints Catholic High School - Kanata - Cross Section

Nantyr Shores High School Plan View

Nantyr Shores High School - Cross Section

Nantyr Shores High School - FOH

Strathroy Secondary School -London - Stage Grid

Strathroy Secondary School - Cross Section

Strathroy Secondary School - AV Production Studio

Strathroy Secondary School - Theatre Arts Space - on the side of the stage.

 

Storage of draperies was considered during the design stage to minimize space required for more large scale productions, and to stop the drapes from getting dammaged during normal stage use.

This page last updated 10/04/98 by webmaster.